یک مثال بسیار خوب از ترکیب ساختمانسازی مدرن و سنتی
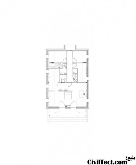
این پروژه یک خانه 744 متر مربعی برای یک خانواده در هلند است که میخواستند در حومه شهر زندگی کنند.
معمار این طرح – Arjean Reas – خواسته است در این پروژه خانه های سنتی هلندی و خانه های مدرن را با هم ترکیب کند. با اینکار وی خواسته است تا با ساخت ساختمانی با ظاهر سنتی محیط بیرون شهر را که یک محیط روستایی بود با ساختمان مدرن دچار تناقص نکند.
او طرح زیر را طراحی کرد:







